Restructuration du gymnase Albert-Le-Grand
Avec son large bandeau béton et son architecture facilement identifiable, il s’impose comme un élément structurant au service des habitants.
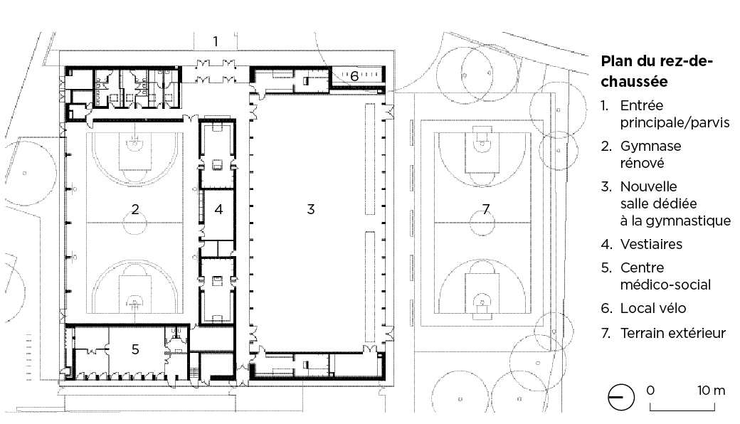
Situé au cœur du Neudorf, un quartier du sud de Strasbourg proche du centre-ville comme de l’université, l’actuel gymnase Albert-Le-Grand pourrait s’apparenter à la rencontre de deux volontés, celle de la ville et celle des architectes qui ont conçu sa restructuration et son extension. Leur objectif commun ? Offrir aux usagers un équipement qui réponde le plus précisément possible à leurs besoins tout en préservant l’environnement. Construit initialement dans les années 1960, il ne comportait à l’origine qu’une seule grande salle multisport posée sur une large surface d’enrobé utilisée comme aire de sport extérieure. Un dispositif classique devenu obsolète qu’il était urgent de transformer. La position de l’équipement à proximité de la trame verte et bleue – un réseau de réservoirs de biodiversité sillonnant la ville – décuplait l’importance d’une prise en compte environnementale.
Une insertion respectueuse
Autre élément important en termes de contexte, la typologie de ce quartier résidentiel où maisons individuelles et barres de logements se côtoient. Pour s’insérer avec justesse dans ce cadre particulier, l’agence LDA s’est appuyée sur une analyse fine du site et du programme.
Plusieurs paramètres expliquent le parti choisi et notamment la volonté de préserver les espaces verts et les arbres remarquables présents sur le terrain. Dans cette optique, l’implantation choisie est compacte. L’extension de l’équipement s’est faite exclusivement sur une surface d’enrobé existante.
La nouvelle salle vient doubler l’ancien gymnase. Pour maîtriser l’échelle de cet ensemble composé de deux volumes hauts et imposants, les architectes ont eu l’idée de créer un socle carré, qui les enserre et les réunit ; il offre au regard la sensation d’une seule entité bâtie. Un auvent périphérique marqué par un large bandeau en béton accentue l’effet en ceinturant l’équipement sur ses quatre côtés, conférant à chaque façade la même importance. Aucun point de vue n’est privilégié.

La mise en place du socle béton présente un autre avantage. Il ancre l’équipement dans le paysage et lui donne une assise rassurante. En outre, le large bandeau modifie la perception de l’ensemble. Il accroche l’œil du passant et met au second plan les volumes émergents des salles qui semblent ainsi moins imposants. Ce dispositif pourrait presque résumer à lui seul ce qu’induit l’architecture raisonnée développée par l’agence LDA. La forme résulte de la fonction et non l’inverse.
Chaque élément se doit d’avoir un sens et de répondre au mieux à l’usage, voire d’être multifonction. Pour exemple, l’auvent périphérique, dont la profondeur varie afin de s’adapter aux besoins. De simple brise-soleil, il peut se transformer en préau côté accès du public. Ici tout est dessiné avec rigueur et un sens aigu du détail. Les formes épurées se plient à l’usage et pourtant il s’en dégage un peu plus qu’une simple réponse à la seule fonction.
Une architecture incarnée
En effet, les volumes vous accueillent et vous enveloppent. C’est en partie dû au choix des matériaux, l’équipement étant quasi exclusivement réalisé en béton et en bois. Ces deux matières brutes et vivantes donnent de l’épaisseur et de la texture aux différentes surfaces. Il en résulte une atmosphère vibrante et apaisante, un effet renforcé par l’abondance de lumière naturelle qui vient mettre en valeur nuances et reliefs. Un des autres aspects plaisants à l’œil relève du rythme dégagé par le choix des trames et l’équilibre qui s’en dégage. Tout le travail a consisté à trouver un dénominateur commun entre celles applicables au bois et au béton pour créer une géométrie qui soit efficiente techniquement tout en étant harmonieuse, en particulier dans la nouvelle salle. Ce savant dosage entre contrainte et liberté découle d’un réglage fin et d’un jeu subtil sur les épaisseurs.
Une rénovation sans superflu
Faire le choix d’un socle béton présentait un dernier avantage. Il permettait de faire le lien en termes de matériaux avec le gymnase existant. En plutôt bon état, le bâtiment nécessitait cependant d’être rénové et surtout mis en valeur, en particulier les poutres coffrées planchette, cachées à l’origine derrière un faux plafond. Elles ont été nettoyées et sont désormais apparentes.
En revanche, le plancher d’origine entre poutres a dû être déposé. Réalisé en béton cellulaire armé, un classique de l’époque, il présentait des flèches trop importantes. Afin de pouvoir conserver les poutres et portiques béton après restauration, le nouveau plancher a été reconstitué en ossature bois. Cette solution offrait autant de légèreté que le plancher précédent tout en assumant le poids complémentaire des isolations de toiture à prévoir, sans nécessiter le renforcement de la structure béton existante. Ce plancher bois sert également à contreventer l’ossature béton et à assurer une structure mixte collaborante de rénovation.
Une réalisation sans fard
La nouvelle salle est née du même duo, un soubassement béton sur lequel repose une ossature bois formant la partie haute du volume. Ce choix découle d’un principe simple : trouver la solution qui exploite au mieux les caractéristiques techniques des matériaux, le but étant d’obtenir un résultat efficace et durable en privilégiant des matières brutes qui résistent aux assauts de l’usage et du temps, et se patinent sans que la moindre marque soit perçue comme un défaut de surface.
Pour conserver la peau du béton apparente, les parois extérieures qui composent le socle sont constituées de doubles murs prenant en sandwich l’isolant thermique. Ils ont été coulés en place comme quasi tous les éléments en béton. Seuls les panneaux composant le bandeau périphérique ont été préfabriqués mais sur site.

Une conscience écologique
Ce respect de l’environnement ne se cantonne pas à la préservation des espaces verts. Il imprime l’ensemble du projet qui a obtenu les labels E3C1 pour la partie neuve et BBC rénovation pour l’existant, un niveau de performance qui s’explique notamment par la compacité du bâtiment et l’importance de son isolation. Il faut ajouter à cela les panneaux solaires qui s’étendent désormais sur la toiture de l’ancien gymnase – une superficie suffisante pour couvrir plus que les besoins de l’équipement. Les autres toitures sont végétalisées, elles participent à l’infiltration des eaux de pluie. Un bassin assure la récupération éventuelle du trop-plein qui sert à l’arrosage des surfaces plantées.
Côté éclairage, l’importance des surfaces vitrées et la présence de puits de lumière dans les locaux aveugles minimisent la consommation en électricité.
Peu de temps après son inauguration, le gymnase Albert-Le-Grand a été mis à la disposition d’athlètes gymnastes comme lieu d’entraînement lors des Jeux olympiques de Paris 2024. Ils ont pu profiter d’un équipement confortable dont l’architecture épurée pourrait symboliser la rencontre entre classicisme et modernité.
Qualités environnementales : E3C1 pour le gymnase neuf, BBC rénovation pour le bâtiment existant.
Localiser la réalisation
Reportage photo : © Philippe Ruault
Fiche technique
- Maître d’ouvrage : ville et Eurométropole de Strasbourg
- Maître d’œuvre : LDA Architectes – Lionel Debs & Caroline Ziajka associés
- BET : Égis (TCE)
- Entreprise gros œuvre : Blanck
- Surface : 2 030 m2 SDP
- Coût : 5,1 M€ HT
- Programme : restructuration du gymnase (salle multisport) et extension (salle de gymnastique rythmique et sportive).
-
-
Les 140 ans de Construction Moderne
-
Illkirch-Graffenstaden
COMMENTAIRES
LAISSER UN COMMENTAIRE