FÉVRIER 2026 -
Auteur

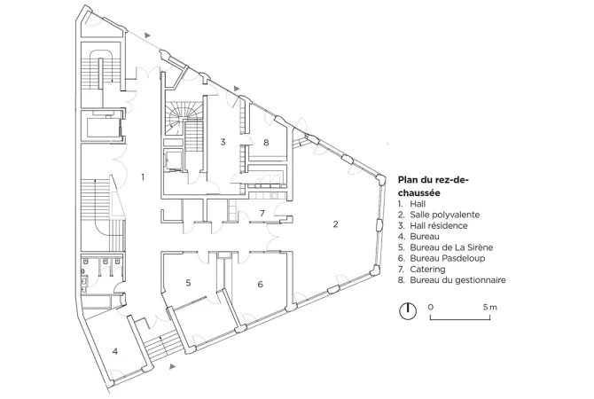
La Sirène : équipement culturel et logements

Dans un contexte bâti composite, l’opération articule l’équipement musical de La Sirène et une résidence pour étudiants et jeunes travailleurs.

Il faut remonter à 1874 pour saisir les origines de l’aventure musicale de La Sirène. Cette année-là, quatre fanfares – celles d’Ivry, de Bicêtre, de Gentilly et de Paris – choisissent de se réunir sous une appellation commune, « La Sirène », manière habile de fédérer sans froisser.

Devenue orchestre d’harmonie dans les années 1960, la formation s’ancre durablement dans le 14e arrondissement. Après plusieurs tribulations, elle se fixe sur une parcelle d’angle dans une petite construction en rez-de-chaussée avec sous-sol, inscrite dans un contexte bâti hétéroclite. Le bâtiment se trouve en mitoyenneté directe avec une figure majeure du Mouvement moderne parisien : le Méridien, ainsi nommé pour sa position sur le méridien de Paris.

Édifié entre 1965 et 1968 par Arthur Héaume et Alexandre Persitz, tous deux formés auprès d’Auguste Perret, l’immeuble de quatorze niveaux affirme une présence massive au carrefour. Il faut dès lors composer avec cet imposant voisin, ainsi qu’avec un environnement urbain où les styles, les hauteurs et les implantations contrastés révèlent un parcellaire parisien particulièrement contrarié. 

La Sirène en rez-de-chaussée et les six niveaux de logements sont adossés au pignon de l’immeuble Méridien.

Quand l’existant atteint ses limites

Accueillie pendant plus de cinquante ans dans la petite construction existante, l’association se heurte aux limites d’un bâtiment devenu inadapté aux exigences de mise aux normes ainsi qu’aux besoins des ensembles musicaux actuels. Malgré l’étude de plusieurs scénarios, la démolition s’impose comme la seule issue possible. Faute de moyens financiers pour porter seule un nouvel édifice, l’association s’engage d’abord dans un projet privé superposant onze étages de logements à l’équipement culturel. La proposition sera rapidement rejetée par les riverains en raison de sa densité et de sa piètre qualité architecturale. La situation évolue lorsque La Sirène se rapproche de la Régie immobilière de la Ville de Paris (RIVP), qui accepte d’accompagner la démarche et d’en assurer la maîtrise d’ouvrage en investissant plusieurs millions d’euros dans la réalisation d’un nouveau bâtiment.

Les inflexions dans la volumétrie sont générées par le dialogue avec les bâtiments voisins.

Modeler le volume, travailler la matière

Confié à l’agence Avenier Cornejo Architectes à l’issue d’un concours gagné en 2018, le nouveau bâti affirme d’emblée une présence marquée au cœur du carrefour. Adossé au pignon de l’imposante barre de logements du Méridien, il parvient néanmoins à s’imposer par un travail volumétrique finement maîtrisé. Le rez-de-chaussée épouse strictement la limite parcellaire sur trois côtés, établissant un rapport direct avec l’espace public. Un vaste hall traversant permet de lire l’édifice de part en part, organise les circulations et garantit l’accessibilité handicapée. Dans les six niveaux supérieurs, le bâtiment s’inscrit dans le prolongement du Méridien, dont il reprend le rythme du pas d’étage. Cette continuité est cependant nuancée par de légères inflexions volumétriques, introduites pour dialoguer avec les constructions successives qui lui font face. Conformément aux prescriptions du PLU, les deux derniers niveaux sont traités en retrait, contribuant à atténuer l’impact du gabarit. Ce travail de modelage volumétrique ne constitue toutefois qu’un des leviers mobilisés pour échapper à la rigueur de la trame.

Le hall de l’équipement musical est traversant, de rue à rue.

L’écriture architecturale s’enrichit d’un travail approfondi sur les matérialités du béton, décliné selon plusieurs registres. « Nous avons énormément travaillé ce matériau sous des formes très différentes. La couleur a été longuement étudiée pour se rapprocher de celle de la pierre et se fondre dans le tissu hétéroclite du quartier. Le choix des agrégats a fait l’objet d’une attention particulière, mêlant des tonalités noires, blanches et violacées à des nuances cuivrées, en écho aux instruments de l’Harmonie de La Sirène. Plusieurs prototypes ont été réalisés en collaboration étroite avec l’entreprise », explique Christelle Avenier.

Ainsi, les murs en béton architectonique matricé habillent le hall et les accès à l’auditorium. La cage d’escalier, les poteaux et les poutres des étages de logements assument, pour leur part, un béton brut de décoffrage. Les sols intérieurs sont réalisés en béton poncé, prolongeant cette continuité matérielle, et les façades en béton bouchardé en révèlent la richesse chromatique. À l’entrée, une matrice intégrée aux banches génère un motif d’écailles, discret rappel de l’identité de La Sirène.

La résidence pour étudiants et jeunes actifs comprend des espaces collectifs, dont une salle de sport.

Structure et dispositifs acoustiques

Le volume du sous-sol a été significativement approfondi afin d’accueillir un auditorium, deux salles de répétition et la loge du chef d’orchestre. Cette intervention a nécessité des reprises en sous-œuvre de l’immeuble mitoyen. Les espaces musicaux sont conçus selon un principe de « boîte dans la boîte », permettant de désolidariser les salles et d’éviter toute transmission acoustique vers les étages de logements. L’auditorium est revêtu de parois acoustiques en bois dont la géométrie, issue de la séquence de Schröder, permet de piéger et de diffuser le son.

Dans tous les espaces de la résidence, la lumière pénètre par de grandes baies et les sols sont continus en intérieur et extérieur.

En partie haute, une large baie vitrée offre, depuis l’escalier d’accès, des vues sur les activités qui s’y déroulent. « Dans cet espace, libre de tout poteau, la hauteur sous plafond atteint 6 m. Le défi constructif était d’autant plus important que six niveaux de logements se superposent au-dessus : il ne fallait pas que la structure se fasse sentir. Des dalles de reprise ont donc été mises en œuvre au rez-de-chaussée et en sous-sol, renforcées par un système de voiles en drapeau », explique Miguel Cornejo. Au rez-de-chaussée de l’équipement musical prennent place les bureaux de l’association ainsi qu’un vaste foyer polyvalent, pouvant s’ouvrir sur la rue et accueillir répétitions et événements.

Une architecture du logement maîtrisée

Dans les étages supérieurs, une attention particulière est portée à l’architecture du logement, conçue comme le prolongement direct de la structure de l’équipement musical. Le premier niveau accueille principalement des espaces collectifs tels qu’une cuisine avec séjour, une salle de sport, une laverie et une grande terrasse, laquelle est partiellement protégée par un creux ménagé dans le volume bâti. Ce retrait, générant un porte-à-faux, a nécessité la mise en œuvre de refends travaillant comme des poutres-voiles, participant à la stabilité de l’ensemble. La qualité d’habitabilité repose sur un soin constant apporté aux détails : larges baies vitrées amplifiant les surfaces des studios, salles de bains éclairées en second jour par des impostes, cuisines et mobilier dessinés sur mesure. Modulables, les éléments de mobilier peuvent se déplacer, se réagencer et s’encastrer afin de libérer l’espace selon les usages. Disposant d’un accès indépendant de celui de La Sirène, les 51 logements sont desservis par un volume d’escalier éclairé naturellement par de larges baies sur rue et dont le garde-corps, finement mis en œuvre, est directement scellé dans le béton.

Le Pavillon de La Sirène accueille aujourd’hui amateurs et professionnels pour des répétitions, des concerts et des événements culturels liés à la musique, dans une volonté d’ouverture affirmée sur le quartier. Cette porosité entre les usages n’est pas un principe théorique : elle se manifeste concrètement dans les pratiques quotidiennes. « Avant, les musiciens se succédaient dans une salle, maintenant ils se rencontrent et se croisent », observent Christelle Avenier et Miguel Cornejo.

Qualités environnementales : label E+C objectif E3C1, label Effinergie 2017 niveau 3 et BBC Effinergie 2017, certification NF habitat HQE® 6 étoiles.

L’escalier desservant les logements offre des vues sur la rue et invite à l’emprunter plutôt que l’ascenseur.

Localiser la réalisation

Reportage photo : © Maxime Delvaux

Fiche technique

  • Maître d’ouvrage : RIVP
  • Maître d’œuvre : Avenier Cornejo Architectes
  • BET : EVP Ingénierie (structure), Étamine (environnement), Acoustibel (acoustique)
  • Entreprise générale : AMT Construction
  • Surface : 2 512 m2 SDP
  • Coût : 8,3 M€ HT
  • Programme : construction d’un équipement culturel dédié à la musique pour l’association La Sirène et 51 logements étudiants et jeunes travailleurs de type T1.

Commentaires 0

Aucun commentaire disponible.

Laisser un commentaire

CAPTCHA